Перейти к контенту
Подбор и сравнение проектов домов от застройщиков Московской области
Подборщик домов
Калькулятор сметы
Калькулятор площади
Форум
Блог
Главная
›
Каталог проектов
›
Проект U-370-1K
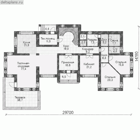
Проект U-370-1K
Застройщик: Юникс-Строй
370.23 м²
1 / 3
🏠
370.23 м²
📐
2 этаж
🧱
Кирпич
Похожие проекты
Похожие по цене
Похожие по площади
Проект D-179-1D
2 этаж
от 30 345 000 ₽
→
Дом по проекту «ЗС 25-16» - Золотое Сечение
4 спальн. · 3 санузл.
от 30 375 000 ₽
→
Проект R-370-1K
3 этаж
от 30 340 000 ₽
→
Проект U-370-1P
2 этаж
от 25 915 400 ₽
→
Проект «Montpellier»
от 18 500 000 ₽
→
ПД - 370 - Строительство домов из Каркаса, СИП, Бруса под ключ
6 спальн. · 3 санузл. · 2 этаж
от 7 930 000 ₽
→
На сайт застройщика