Перейти к контенту
Подбор и сравнение проектов домов от застройщиков Московской области
Подборщик домов
Калькулятор сметы
Калькулятор площади
Форум
Блог
Главная
›
Каталог проектов
›
Проект U-373-1P
Проект U-373-1P
Застройщик: Юникс-Строй
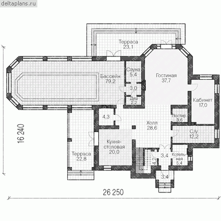
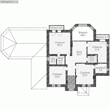
372.66 м²
1 / 3
🏠
372.66 м²
📐
2 этаж
🧱
Пеноблок
Похожие проекты
Похожие по цене
Похожие по площади
Проект одноэтажной виллы Арх. Goebel (XIX в.) из бруса
2 спальн. · 2 этаж
от 26 081 179 ₽
→
Дом в стиле Райта с гаражом и навесом для машины «Хенфорд»
5 спальн. · 2 санузл. · 2 этаж
от 26 076 000 ₽
→
Проект A-174-1D
2 этаж
от 26 100 000 ₽
→
Проект N-373-1K
3 этаж
от 30 569 600 ₽
→
Проект U-372-1P
3 этаж
от 26 068 700 ₽
→
Проект двухэтажного коттеджа "Осенний поцелуй" из газобетона
2 этаж
от 17 668 000 ₽
→
На сайт застройщика