Перейти к контенту
Подбор и сравнение проектов домов от застройщиков Московской области
Подборщик домов
Калькулятор сметы
Калькулятор площади
Форум
Блог
Главная
›
Каталог проектов
›
Проект U-436-1P
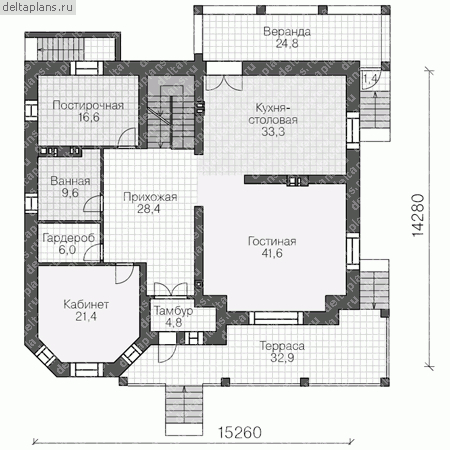
Проект U-436-1P
Застройщик: Юникс-Строй
436.0 м²
1 / 4
🏠
436.0 м²
📐
3 этаж
🧱
Пеноблок
Похожие проекты
Похожие по цене
Похожие по площади
Проект I-372-1K
2 этаж
от 30 522 860 ₽
→
Дом по проекту «ЗС 227-17» - Золотое Сечение
3 спальн. · 2 санузл.
от 30 500 000 ₽
→
Проект U-371-1K
3 этаж
от 30 473 660 ₽
→
Дом из кирпича Проект КД-14
3 спальн. · 2 санузл. · 2 этаж
от 420 000 ₽
→
Проект «Allen»
4 спальн. · 3 санузл. · 2 этаж
от 21 850 000 ₽
→
Современный 2-этажный дом «Аллен» с отдельной баней
4 спальн. · 3 санузл. · 2 этаж
от 26 220 000 ₽
→
На сайт застройщика