Перейти к контенту
Подбор и сравнение проектов домов от застройщиков Московской области
Подборщик домов
Калькулятор сметы
Калькулятор площади
Форум
Блог
Главная
›
Каталог проектов
›
Проект U-451-1P
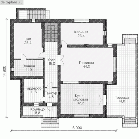
Проект U-451-1P
Застройщик: Юникс-Строй
451.22 м²
1 / 4
🏠
451.22 м²
📐
3 этаж
🧱
Пеноблок
Похожие проекты
Похожие по цене
Похожие по площади
Современный дом с цокольным этажом «Дюрен»
3 спальн. · 4 санузл. · 1 этаж
от 31 596 000 ₽
→
Проект M-385-1K
3 этаж
от 31 601 160 ₽
→
Проект «Cleveland»
5 спальн. · 4 санузл.
от 31 620 000 ₽
→
Проект дома «Florence»
3 спальн. · 4 санузл.
от 22 565 000 ₽
→
Проект дома «Florence»
3 спальн. · 4 санузл.
от 22 565 000 ₽
→
Проект дома «Florence»
3 спальн. · 4 санузл. · 2 этаж
от 22 565 000 ₽
→
На сайт застройщика