Перейти к контенту
Подбор и сравнение проектов домов от застройщиков Московской области
Подборщик домов
Калькулятор сметы
Калькулятор площади
Форум
Блог
Главная
›
Каталог проектов
›
Проект U-610-1K
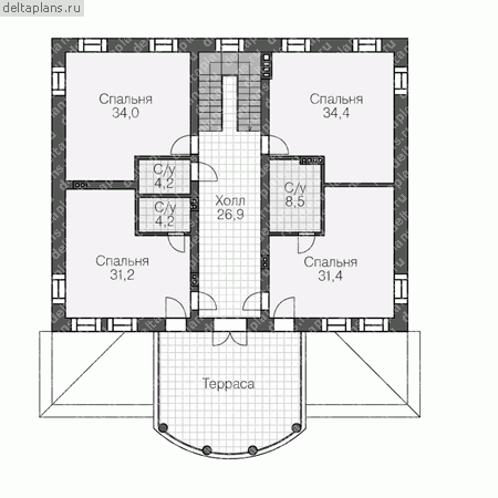
Проект U-610-1K
Застройщик: Юникс-Строй
610.0 м²
1 / 4
🏠
610.0 м²
📐
3 этаж
🧱
Кирпич
Похожие проекты
Похожие по цене
Похожие по площади
Проект S-1254-1K
3 этаж
от 50 164 000 ₽
→
Проект S-608-1K
3 этаж
от 49 872 400 ₽
→
Дом в стиле Райта с большой террасой «Вангард»
6 спальн. · 7 санузл. · 2 этаж
от 49 686 000 ₽
→
Проект S-608-1K
3 этаж
от 49 872 400 ₽
→
Проект дома K-612-1P
2 этаж
от 42 840 000 ₽
→
Проект дома M-559-1P
3 этаж
от 42 490 000 ₽
→
На сайт застройщика