Перейти к контенту
Подбор и сравнение проектов домов от застройщиков Московской области
Подборщик домов
Калькулятор сметы
Калькулятор площади
Форум
Блог
Главная
›
Каталог проектов
›
Проект V-132-1P
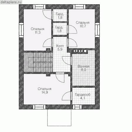
Проект V-132-1P
Застройщик: Юникс-Строй
131.8 м²
1 / 3
🏠
131.8 м²
📐
2 этаж
🧱
Пеноблок
Похожие проекты
Похожие по цене
Похожие по площади
Норд 6
5 спальн. · 3 санузл. · 2 этаж
от 9 226 561 ₽
→
Ривьера 3
7 спальн. · 3 санузл. · 2 этаж
от 9 223 000 ₽
→
Ривьера 3
7 спальн. · 3 санузл. · 2 этаж
от 9 223 000 ₽
→
Дома из керамических блоков Вилла M под ключ
3 спальн. · 2 санузл. · 2 этаж
от 9 200 400 ₽
→
Дома из керамических блоков Тетрис M под ключ
4 спальн. · 2 санузл. · 2 этаж
от 9 099 800 ₽
→
Проекты домов из газобетона Вилла M под ключ
3 спальн. · 2 санузл. · 2 этаж
от 7 992 700 ₽
→
На сайт застройщика