Перейти к контенту
Подбор и сравнение проектов домов от застройщиков Московской области
Подборщик домов
Калькулятор сметы
Калькулятор площади
Форум
Блог
Главная
›
Каталог проектов
›
Проект V-142-1P
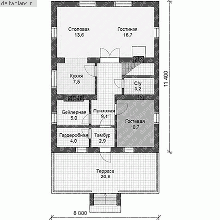
Проект V-142-1P
Застройщик: Юникс-Строй
142.81 м²
1 / 4
🏠
142.81 м²
📐
3 этаж
🧱
Пеноблок
Похожие проекты
Похожие по цене
Похожие по площади
Каркасные дома Стокгольм M под ключ
2 спальн. · 1 санузл. · 1 этаж
от 9 993 500 ₽
→
Проект одноэтажного дома "Бордо" из бруса
5 спальн. · 2 этаж
от 10 000 452 ₽
→
Проект T-143-1P
2 этаж
от 10 003 000 ₽
→
Проект Y-143-1S
2 этаж
от 2 813 160 ₽
→
Проект одноэтажного дома "Дрофа" из бруса
4 спальн. · 2 этаж
от 9 600 434 ₽
→
Уэльс 21
4 спальн. · 2 санузл. · 2 этаж
от 4 639 800 ₽
→
На сайт застройщика