Перейти к контенту
Подбор и сравнение проектов домов от застройщиков Московской области
Подборщик домов
Калькулятор сметы
Калькулятор площади
Форум
Блог
Главная
›
Каталог проектов
›
Проект V-161-1P
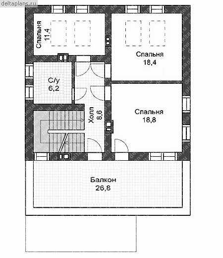
Проект V-161-1P
Застройщик: Юникс-Строй
161.02 м²
1 / 3
🏠
161.02 м²
📐
2 этаж
🧱
Пеноблок
Похожие проекты
Похожие по цене
Похожие по площади
Проект U-137-1K
1 этаж
от 11 269 260 ₽
→
Проект V-160-1P
2 этаж
от 11 267 200 ₽
→
Кирпичный дом С-242 К «Сияние»
4 спальн. · 2 санузл. · 4 этаж
от 11 279 000 ₽
→
Проект одноэтажного дома "Вознесенское" из бруса
3 спальн. · 2 этаж
от 14 334 912 ₽
→
Проект одноэтажного дома "Зеленогорский" из бруса
3 спальн. · 2 этаж
от 14 018 330 ₽
→
Проект одноэтажного дома "Изабелла" из бруса
4 спальн. · 2 этаж
от 11 585 748 ₽
→
На сайт застройщика