Перейти к контенту
Подбор и сравнение проектов домов от застройщиков Московской области
Подборщик домов
Калькулятор сметы
Калькулятор площади
Форум
Блог
Главная
›
Каталог проектов
›
Проект V-164-1K
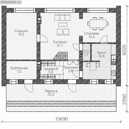
Проект V-164-1K
Застройщик: Юникс-Строй
164.48 м²
1 / 3
🏠
164.48 м²
📐
2 этаж
🧱
Кирпич
Похожие проекты
Похожие по цене
Похожие по площади
Проект двухэтажного каркасного дома "Ненси"
4 спальн. · 2 этаж
от 13 487 356 ₽
→
Проект двухэтажного каркасного дома "Ригель"
6 спальн. · 2 этаж
от 13 487 356 ₽
→
Проект I-192-1P
2 этаж
от 13 482 000 ₽
→
Проект одноэтажного коттеджа "Русская песня" из газобетона
4 спальн. · 2 этаж
от 9 476 000 ₽
→
Проект V-163-1P
2 этаж
от 11 511 500 ₽
→
Проект каркасного дома КП-1750
4 спальн. · 2 этаж
от 12 615 000 ₽
→
На сайт застройщика