Перейти к контенту
Подбор и сравнение проектов домов от застройщиков Московской области
Подборщик домов
Калькулятор сметы
Калькулятор площади
Форум
Блог
Главная
›
Каталог проектов
›
Проект V-165-1P
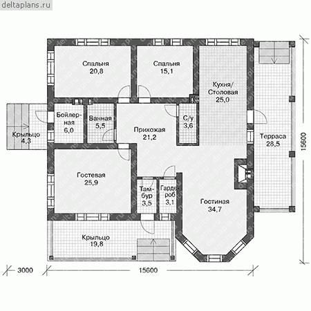
Проект V-165-1P
Застройщик: Юникс-Строй
165.9 м²
1 / 2
🏠
165.9 м²
📐
1 этаж
🧱
Пеноблок
Похожие проекты
Похожие по цене
Похожие по площади
Проект U-179-1P
2 этаж
от 11 613 700 ₽
→
Дом из газобетонных блоков С-281 ГБ «Альпийский»
5 спальн. · 2 санузл. · 2 этаж
от 11 617 000 ₽
→
Дом из керамических блоков С-281 КЕ «Альпийский»
5 спальн. · 2 санузл. · 2 этаж
от 11 617 000 ₽
→
Проект U-179-1P
2 этаж
от 11 613 700 ₽
→
Проект одноэтажного дома "Лебяжий" из бруса
3 спальн. · 2 этаж
от 12 151 061 ₽
→
Проект T-166-2P
2 этаж
от 11 608 100 ₽
→
На сайт застройщика