Перейти к контенту
Подбор и сравнение проектов домов от застройщиков Московской области
Подборщик домов
Калькулятор сметы
Калькулятор площади
Форум
Блог
Главная
›
Каталог проектов
›
Проект V-166-1P
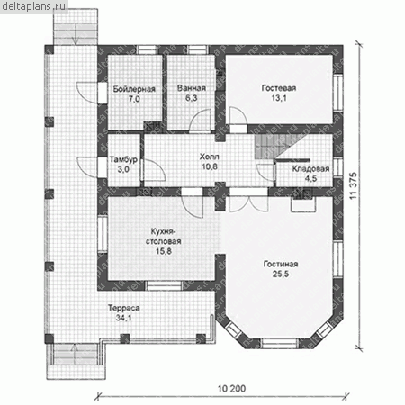
Проект V-166-1P
Застройщик: Юникс-Строй
166.47 м²
1 / 3
🏠
166.47 м²
📐
2 этаж
🧱
Пеноблок
Похожие проекты
Похожие по цене
Похожие по площади
Проект F-142-1K
2 этаж
от 11 652 200 ₽
→
СК-4
5 спальн. · 3 санузл. · 2 этаж
от 11 650 000 ₽
→
Проект дома из газоблоков 16х12 ГББ-196: цена 8166000 руб.
6 спальн. · 2 санузл. · 2 этаж
от 11 648 000 ₽
→
Проект V-166-1K
2 этаж
от 13 650 540 ₽
→
Проект Y-196-1D
2 этаж
от 24 972 000 ₽
→
Аврора 2
4 спальн. · 3 санузл. · 2 этаж
от 7 639 800 ₽
→
На сайт застройщика