Перейти к контенту
Подбор и сравнение проектов домов от застройщиков Московской области
Подборщик домов
Калькулятор сметы
Калькулятор площади
Форум
Блог
Главная
›
Каталог проектов
›
Проект V-171-1P
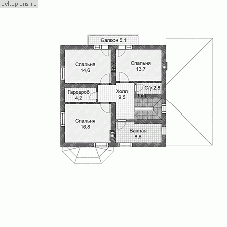
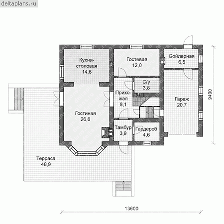
Проект V-171-1P
Застройщик: Юникс-Строй
171.0 м²
1 / 3
🏠
171.0 м²
📐
2 этаж
🧱
Пеноблок
Похожие проекты
Похожие по цене
Похожие по площади
Проект дома «Ирвинг»
3 спальн. · 1 этаж
от 11 968 800 ₽
→
Проект дома «Вудс»
5 спальн. · 2 этаж
от 11 966 400 ₽
→
Проект одноэтажного коттеджа "Русвен" из газобетона
3 спальн. · 2 этаж
от 11 965 000 ₽
→
Проект К-175 10 на 9, площадью 171 за 5 764 500 руб
4 спальн. · 2 этаж
от 5 764 500 ₽
→
Проект К-175 10 на 9, площадью 171 за 5 764 500 руб
4 спальн. · 2 этаж
от 4 788 000 ₽
→
Проект К-191 9 на 10, площадью 171 за 5 764 500 руб
4 спальн. · 2 этаж
от 5 764 500 ₽
→
На сайт застройщика