Перейти к контенту
Подбор и сравнение проектов домов от застройщиков Московской области
Подборщик домов
Калькулятор сметы
Калькулятор площади
Форум
Блог
Главная
›
Каталог проектов
›
Проект V-202-1P
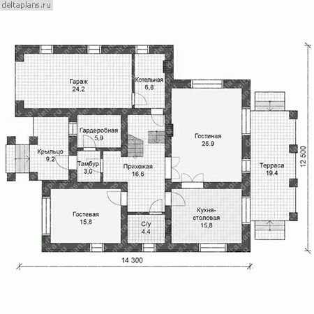
Проект V-202-1P
Застройщик: Юникс-Строй
202.59 м²
1 / 3
🏠
202.59 м²
📐
2 этаж
🧱
Пеноблок
Похожие проекты
Похожие по цене
Похожие по площади
Проект одноэтажного дома "Дуэт 3" из бруса
5 спальн. · 2 этаж
от 14 176 641 ₽
→
Проект дома из газоблоков 12х13 ГББ-201: цена 9348000 руб.
5 спальн. · 4 санузл. · 2 этаж
от 14 173 000 ₽
→
Проект одноэтажного дома "Фирсик" из бруса
5 спальн. · 2 этаж
от 14 168 640 ₽
→
Проект одноэтажного дома "Вильнюс" из бруса
3 спальн. · 1 этаж
от 16 360 739 ₽
→
Проект N-202-1K
2 этаж
от 16 591 880 ₽
→
Проект дома «Три сына»
5 спальн. · 1 этаж
от 17 017 000 ₽
→
На сайт застройщика