Перейти к контенту
Подбор и сравнение проектов домов от застройщиков Московской области
Подборщик домов
Калькулятор сметы
Калькулятор площади
Форум
Блог
Главная
›
Каталог проектов
›
Проект V-218-1K
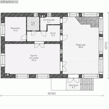
Проект V-218-1K
Застройщик: Юникс-Строй
218.37 м²
1 / 3
🏠
218.37 м²
📐
2 этаж
🧱
Кирпич
Похожие проекты
Похожие по цене
Похожие по площади
Проект K-256-1P
2 этаж
от 17 907 400 ₽
→
Проект дома из керамоблоков 18х13 ТКБ-244: цена 10423000 руб.
4 спальн. · 3 санузл. · 2 этаж
от 17 910 000 ₽
→
Проект дома J-255-1P
3 этаж
от 17 910 200 ₽
→
Проект дома «Грув»
4 спальн. · 2 этаж
от 10 360 000 ₽
→
Проект дома «Торнтон»
4 спальн. · 2 этаж
от 10 360 000 ₽
→
Дома из керамических блоков Вилла 2 L под ключ
5 спальн. · 2 санузл. · 2 этаж
от 11 841 200 ₽
→
На сайт застройщика