Перейти к контенту
Подбор и сравнение проектов домов от застройщиков Московской области
Подборщик домов
Калькулятор сметы
Калькулятор площади
Форум
Блог
Главная
›
Каталог проектов
›
Проект V-218-1P
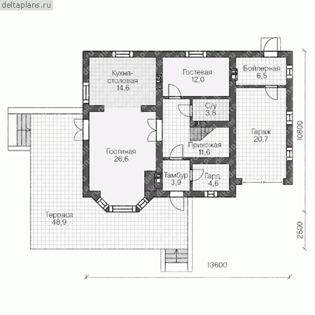
Проект V-218-1P
Застройщик: Юникс-Строй
218.42 м²
1 / 4
🏠
218.42 м²
📐
3 этаж
🧱
Пеноблок
Похожие проекты
Похожие по цене
Похожие по площади
Проект G-218-1P
2 этаж
от 15 290 800 ₽
→
Кирпичный дом С-358 К «Арфа»
3 спальн. · 4 санузл. · 3 этаж
от 15 295 000 ₽
→
Проект R-218-1P
2 этаж
от 15 299 900 ₽
→
Проект дома «Грув»
4 спальн. · 2 этаж
от 10 360 000 ₽
→
Проект дома «Торнтон»
4 спальн. · 2 этаж
от 10 360 000 ₽
→
Дома из керамических блоков Вилла 2 L под ключ
5 спальн. · 2 санузл. · 2 этаж
от 11 841 200 ₽
→
На сайт застройщика