Перейти к контенту
Подбор и сравнение проектов домов от застройщиков Московской области
Подборщик домов
Калькулятор сметы
Калькулятор площади
Форум
Блог
Главная
›
Каталог проектов
›
Проект V-241-1P
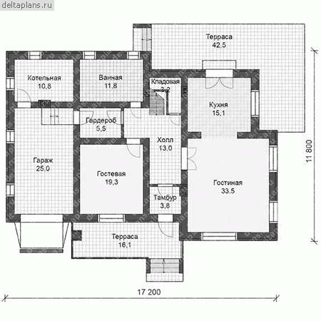
Проект V-241-1P
Застройщик: Юникс-Строй
246.26 м²
1 / 4
🏠
246.26 м²
📐
3 этаж
🧱
Пеноблок
Похожие проекты
Похожие по цене
Похожие по площади
Проект дома из керамоблоков 20х9 ТКБ-224: цена 11884000 руб.
4 спальн. · 3 санузл. · 2 этаж
от 17 238 000 ₽
→
Дом 3 спальни с сауной №377
2 этаж
от 17 247 300 ₽
→
Проект дома №377
2 этаж
от 17 247 300 ₽
→
Проект двухэтажного коттеджа "Сандра КД" из газобетона
4 спальн. · 2 этаж
от 10 600 000 ₽
→
Проект одноэтажного коттеджа "Виноградный" из газобетона
5 спальн. · 2 этаж
от 10 704 000 ₽
→
Проект M-246-1D
3 этаж
от 36 909 000 ₽
→
На сайт застройщика