Перейти к контенту
Подбор и сравнение проектов домов от застройщиков Московской области
Подборщик домов
Калькулятор сметы
Калькулятор площади
Форум
Блог
Главная
›
Каталог проектов
›
Проект V-242-1P
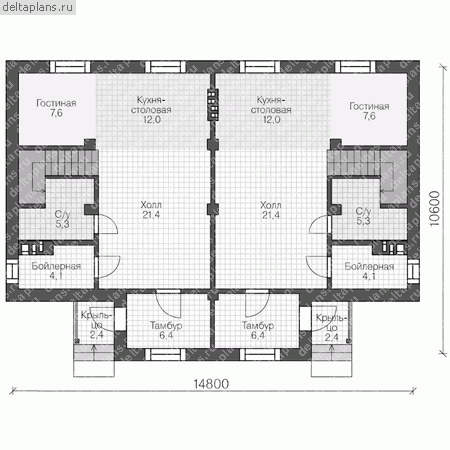
Проект V-242-1P
Застройщик: Юникс-Строй
242.0 м²
1 / 3
🏠
242.0 м²
📐
2 этаж
🧱
Пеноблок
Похожие проекты
Похожие по цене
Похожие по площади
Проект дома F-224-1P
2 этаж
от 16 940 700 ₽
→
Проект одноэтажного дома "Иверия" из бруса
5 спальн. · 2 этаж
от 16 936 533 ₽
→
Проект «Hoffland»
3 спальн. · 3 санузл.
от 16 950 000 ₽
→
Дом по проекту «ЗС 75-14» - Золотое Сечение
4 спальн. · 2 санузл.
от 30 250 000 ₽
→
Дом из газобетонных блоков С-242 ГБ «Сияние»
4 спальн. · 2 санузл. · 4 этаж
от 10 502 000 ₽
→
Дом из керамических блоков С-242 КЕ «Сияние»
4 спальн. · 2 санузл. · 4 этаж
от 10 502 000 ₽
→
На сайт застройщика