Перейти к контенту
Подбор и сравнение проектов домов от застройщиков Московской области
Подборщик домов
Калькулятор сметы
Калькулятор площади
Форум
Блог
Главная
›
Каталог проектов
›
Проект V-245-1P
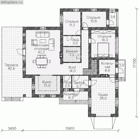
Проект V-245-1P
Застройщик: Юникс-Строй
245.0 м²
1 / 3
🏠
245.0 м²
📐
2 этаж
🧱
Пеноблок
Похожие проекты
Похожие по цене
Похожие по площади
Проект R-245-1P
2 этаж
от 17 150 000 ₽
→
Проект дома A-245-1P
2 этаж
от 17 150 000 ₽
→
Проект одноэтажного дома "Корвет" из бруса
6 спальн. · 2 этаж
от 17 151 175 ₽
→
Дом Покровское 2 из газобетона: заказать в Москве по низкой цене
4 спальн. · 2 санузл. · 2 этаж
от 10 440 000 ₽
→
Дом Покровское 2 из кирпича: заказать в Москве по низкой цене
4 спальн. · 2 санузл. · 2 этаж
от 10 440 000 ₽
→
Проект дома «Фелпс»
4 спальн. · 2 этаж
от 11 641 724 ₽
→
На сайт застройщика