Перейти к контенту
Подбор и сравнение проектов домов от застройщиков Московской области
Подборщик домов
Калькулятор сметы
Калькулятор площади
Форум
Блог
Главная
›
Каталог проектов
›
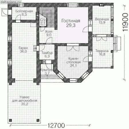
Проект V-250-1P
Проект V-250-1P
Застройщик: Юникс-Строй
250.1 м²
1 / 4
🏠
250.1 м²
📐
3 этаж
🧱
Пеноблок
Похожие проекты
Похожие по цене
Похожие по площади
Дом по проекту «ЗС 335-18» - Золотое Сечение
4 спальн. · 2 санузл.
от 17 500 000 ₽
→
Дом по проекту «ЗС 957-21» - Золотое Сечение
2 спальн. · 3 санузл.
от 17 500 000 ₽
→
Проект Millett
2 этаж
от 17 500 000 ₽
→
Проект одноэтажного коттеджа "Клаус" из газобетона
6 спальн. · 2 этаж
от 10 388 000 ₽
→
Дом из газобетона Проект ГБ-236
3 спальн. · 2 санузл.
от 8 049 000 ₽
→
Добрыня 3 (11x13.5 )
4 спальн. · 2 санузл. · 2 этаж
от 11 308 000 ₽
→
На сайт застройщика