Перейти к контенту
Подбор и сравнение проектов домов от застройщиков Московской области
Подборщик домов
Калькулятор сметы
Калькулятор площади
Форум
Блог
Главная
›
Каталог проектов
›
Проект V-286-1K
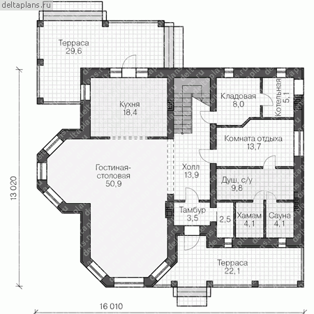
Проект V-286-1K
Застройщик: Юникс-Строй
286.67 м²
1 / 4
🏠
286.67 м²
📐
3 этаж
🧱
Кирпич
Похожие проекты
Похожие по цене
Похожие по площади
Проект дома V-336-1P
3 этаж
от 23 506 000 ₽
→
Дом по проекту «ЗС 15-17» - Золотое Сечение
2 спальн. · 2 санузл.
от 23 500 000 ₽
→
Дом по проекту «ЗС 30-16» - Золотое Сечение
2 спальн. · 2 санузл.
от 23 500 000 ₽
→
Проект J-287-1K
2 этаж
от 23 493 000 ₽
→
Проект G-286-1K
3 этаж
от 23 484 800 ₽
→
Проект W-286-1K
2 этаж
от 23 484 800 ₽
→
На сайт застройщика