Перейти к контенту
Подбор и сравнение проектов домов от застройщиков Московской области
Подборщик домов
Калькулятор сметы
Калькулятор площади
Форум
Блог
Главная
›
Каталог проектов
›
Проект V-305-1K
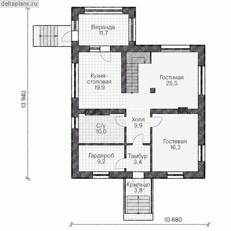
Проект V-305-1K
Застройщик: Юникс-Строй
305.73 м²
1 / 5
🏠
305.73 м²
📐
3 этаж
🧱
Кирпич
Похожие проекты
Похожие по цене
Похожие по площади
Проект B-305-1K
3 этаж
от 25 075 600 ₽
→
Проект Y-167-1D
2 этаж
от 25 080 000 ₽
→
Вилла с бассейном «Камлау»
3 спальн. · 4 санузл. · 2 этаж
от 25 092 000 ₽
→
Проект B-305-1K
3 этаж
от 25 075 600 ₽
→
Проект К-214 12 на 13, площадью 306 за 10 251 000 руб
4 спальн. · 2 этаж
от 10 251 000 ₽
→
Проект К-214 12 на 13, площадью 306 за 10 251 000 руб
4 спальн. · 2 этаж
от 8 568 000 ₽
→
На сайт застройщика