Перейти к контенту
Подбор и сравнение проектов домов от застройщиков Московской области
Подборщик домов
Калькулятор сметы
Калькулятор площади
Форум
Блог
Главная
›
Каталог проектов
›
Проект V-315-1K
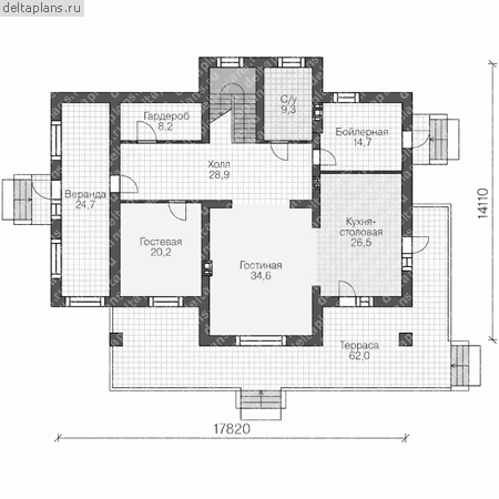
Проект V-315-1K
Застройщик: Юникс-Строй
315.06 м²
1 / 3
🏠
315.06 м²
📐
2 этаж
🧱
Кирпич
Похожие проекты
Похожие по цене
Похожие по площади
Проект U-315-1K
2 этаж
от 25 831 640 ₽
→
Проект «Manhattan»
4 спальн. · 5 санузл.
от 25 800 000 ₽
→
Дом по проекту «ЗС 1-16» - Золотое Сечение
3 спальн. · 3 санузл.
от 25 875 000 ₽
→
Проект U-315-1K
2 этаж
от 25 831 640 ₽
→
Современный дом с навесом для автомобиля «Мердорф»
4 спальн. · 4 санузл. · 2 этаж
от 18 900 000 ₽
→
Проект дома D-229-1P
2 этаж
от 22 050 000 ₽
→
На сайт застройщика