Перейти к контенту
Подбор и сравнение проектов домов от застройщиков Московской области
Подборщик домов
Калькулятор сметы
Калькулятор площади
Форум
Блог
Главная
›
Каталог проектов
›
Проект W-338-1K
Проект W-338-1K
Застройщик: Юникс-Строй
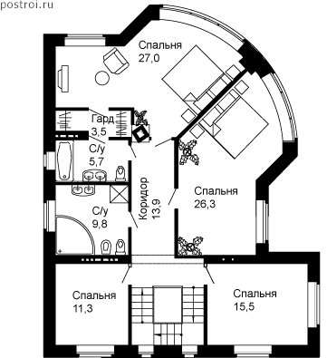
338.0 м²
1 / 4
🏠
338.0 м²
📐
3 этаж
🧱
Кирпич
Похожие проекты
Похожие по цене
Похожие по площади
Проект G-185-1D
2 этаж
от 27 720 000 ₽
→
Проект W-337-1K
2 этаж
от 27 707 800 ₽
→
Проект «Corwin»
4 спальн. · 5 санузл. · 2 этаж
от 27 700 000 ₽
→
Проект К-232 17 на 10, площадью 338 за 11 293 500 руб
7 спальн. · 2 этаж
от 11 293 500 ₽
→
Проект К-232 17 на 10, площадью 338 за 11 293 500 руб
7 спальн. · 2 этаж
от 9 464 000 ₽
→
Дом из газобетонных блоков С-338 ГБ «Достижение»
5 спальн. · 3 санузл. · 2 этаж
от 15 045 000 ₽
→
На сайт застройщика