Перейти к контенту
Подбор и сравнение проектов домов от застройщиков Московской области
Подборщик домов
Калькулятор сметы
Калькулятор площади
Форум
Блог
Главная
›
Каталог проектов
›
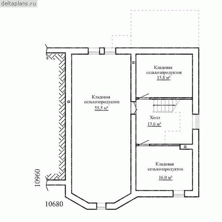
Проект W-361-1K
Проект W-361-1K
Застройщик: Юникс-Строй
360.5 м²
1 / 4
🏠
360.5 м²
📐
3 этаж
🧱
Кирпич
Похожие проекты
Похожие по цене
Похожие по площади
Проект H-423-1P
2 этаж
от 29 568 000 ₽
→
Коттедж в стиле Райта «Лимбург»
5 спальн. · 5 санузл. · 2 этаж
от 29 586 000 ₽
→
Проект I-360-1K
3 этаж
от 29 520 000 ₽
→
Проект К-209 11 на 17, площадью 360 за 12 104 250 руб
5 спальн. · 2 этаж
от 12 104 250 ₽
→
Проект К-209 11 на 17, площадью 360 за 12 104 250 руб
5 спальн. · 2 этаж
от 10 080 000 ₽
→
Проект К-231 18 на 10, площадью 360 за 12 015 000 руб
6 спальн. · 2 этаж
от 12 015 000 ₽
→
На сайт застройщика