Перейти к контенту
Подбор и сравнение проектов домов от застройщиков Московской области
Подборщик домов
Калькулятор сметы
Калькулятор площади
Форум
Блог
Главная
›
Каталог проектов
›
Проект X-110-1P
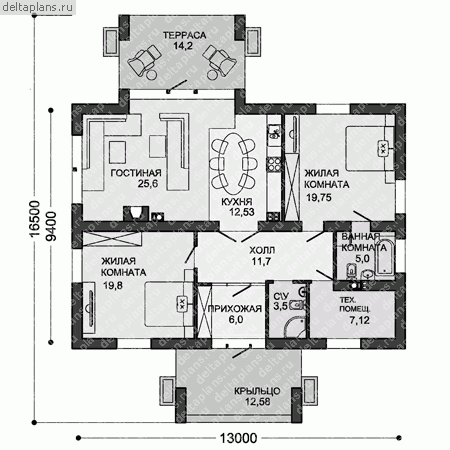
Проект X-110-1P
Застройщик: Юникс-Строй
110.96 м²
1 / 2
🏠
110.96 м²
📐
1 этаж
🧱
Пеноблок
Похожие проекты
Похожие по цене
Похожие по площади
Проект U-113-1P
2 этаж
от 7 768 600 ₽
→
Проект двухэтажного каркасного дома Усадьба L под ключ от компании БАКО
3 спальн. · 2 санузл. · 2 этаж
от 7 770 000 ₽
→
Кирпичный дом С-166 К «Сентябрь»
6 спальн. · 2 санузл. · 2 этаж
от 7 762 000 ₽
→
Проект U-113-1P
2 этаж
от 7 768 600 ₽
→
Проект одноэтажного дома "Перспектива (одноэтажная)" из бруса
2 спальн. · 1 этаж
от 8 745 874 ₽
→
Проект одноэтажного дома с террасой Riven-111 м² из газоблока — Домострой
4 спальн. · 2 санузл. · 1 этаж
от 9 684 000 ₽
→
На сайт застройщика