Перейти к контенту
Подбор и сравнение проектов домов от застройщиков Московской области
Подборщик домов
Калькулятор сметы
Калькулятор площади
Форум
Блог
Главная
›
Каталог проектов
›
Проект X-147-1P
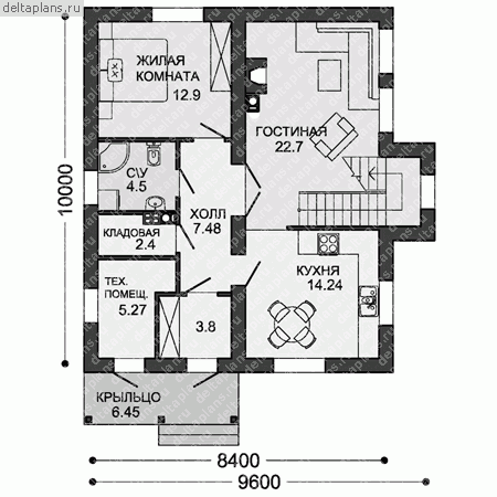
Проект X-147-1P
Застройщик: Юникс-Строй
146.88 м²
1 / 3
🏠
146.88 м²
📐
2 этаж
🧱
Пеноблок
Похожие проекты
Похожие по цене
Похожие по площади
Проект дома H-147-1P
2 этаж
от 10 283 000 ₽
→
Дом Покровское 3 из газобетона: заказать в Москве по низкой цене
2 этаж
от 10 280 000 ₽
→
Дом Покровское 3 из кирпича: заказать в Москве по низкой цене
2 этаж
от 10 280 000 ₽
→
Проект дома H-147-1P
2 этаж
от 10 283 000 ₽
→
Проект V-143-2P
2 этаж
от 10 285 100 ₽
→
Проект дома Версаль
2 этаж
от 4 286 000 ₽
→
На сайт застройщика