Перейти к контенту
Подбор и сравнение проектов домов от застройщиков Московской области
Подборщик домов
Калькулятор сметы
Калькулятор площади
Форум
Блог
Главная
›
Каталог проектов
›
Проект X-183-1P
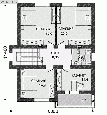
Проект X-183-1P
Застройщик: Юникс-Строй
167.2 м²
1 / 3
🏠
167.2 м²
📐
2 этаж
🧱
Пеноблок
Похожие проекты
Похожие по цене
Похожие по площади
Проект X-183-2P
2 этаж
от 11 704 000 ₽
→
Проект одноэтажного коттеджа "Валери" из газобетона
4 спальн. · 2 этаж
от 11 702 000 ₽
→
Проект одноэтажного дома "Адриано" из бруса
2 спальн. · 2 этаж
от 11 701 969 ₽
→
Проект X-183-2P
2 этаж
от 11 704 000 ₽
→
Проект Y-167-1D
2 этаж
от 25 080 000 ₽
→
Проект двухэтажного дома "Олаф" из бруса
4 спальн. · 2 этаж
от 12 560 568 ₽
→
На сайт застройщика