Перейти к контенту
Подбор и сравнение проектов домов от застройщиков Московской области
Подборщик домов
Калькулятор сметы
Калькулятор площади
Форум
Блог
Главная
›
Каталог проектов
›
Проект Y-151-1S
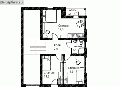
Проект Y-151-1S
Застройщик: Юникс-Строй
150.4 м²
1 / 3
🏠
150.4 м²
📐
2 этаж
🧱
Каркас
Похожие проекты
Похожие по цене
Похожие по площади
Дом «Тихонов» 7х9 м
2 спальн. · 1 этаж
от 2 960 000 ₽
→
Строительство каркасного дома 9х7,5 "Хитчинс" под ключ
3 спальн. · 1 санузл. · 1 этаж
от 2 959 000 ₽
→
Дом «Семёнов» 7х9,5 м
2 спальн. · 1 этаж
от 2 970 000 ₽
→
Проект одноэтажного каркасного дома "Ярило"
4 спальн. · 2 этаж
от 11 018 484 ₽
→
Проект одноэтажного коттеджа "Зимняя Вишня" из газобетона
3 спальн. · 2 этаж
от 8 687 000 ₽
→
Проект A-150-1K
2 этаж
от 12 319 680 ₽
→
На сайт застройщика