Перейти к контенту
Подбор и сравнение проектов домов от застройщиков Московской области
Подборщик домов
Калькулятор сметы
Калькулятор площади
Форум
Блог
Главная
›
Каталог проектов
›
Проект Y-160-1D
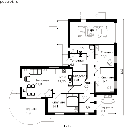
Проект Y-160-1D
Застройщик: Юникс-Строй
134.8 м²
1 / 3
🏠
134.8 м²
📐
2 этаж
🧱
Дерево
Похожие проекты
Похожие по цене
Похожие по площади
Проект одноэтажного дома "Боровское" из бруса
4 спальн. · 2 этаж
от 20 217 178 ₽
→
Проект двухэтажного коттеджа "Парамоново" из бруса
6 спальн. · 3 этаж
от 20 215 146 ₽
→
Проект T-288-1P
2 этаж
от 20 225 100 ₽
→
Проект одноэтажного коттеджа "Южный" из газобетона
3 спальн. · 2 этаж
от 8 428 000 ₽
→
Дом из газобетона ГББ-134
3 спальн. · 2 санузл. · 1 этаж
от 9 420 000 ₽
→
ТКБ-134
3 спальн. · 2 санузл. · 2 этаж
от 10 165 000 ₽
→
На сайт застройщика