Перейти к контенту
Подбор и сравнение проектов домов от застройщиков Московской области
Подборщик домов
Калькулятор сметы
Калькулятор площади
Форум
Блог
Главная
›
Каталог проектов
›
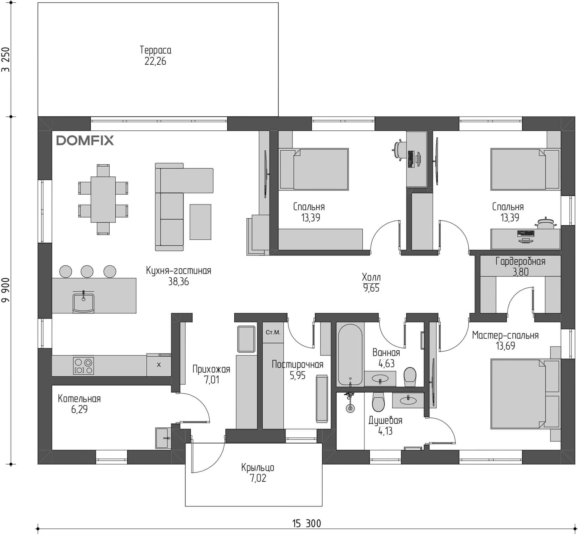
Проект DOMFIX 3 - одноэтажный каменный дом
Проект DOMFIX 3 - одноэтажный каменный дом
Застройщик: DOMFIX
120.0 м²
1 / 2
🏠
120.0 м²
🛏
3 спален
📐
1 этаж
🧱
Каменный дом
Похожие проекты
Похожие по цене
Похожие по площади
Канадец 11
4 спальн. · 2 санузл. · 2 этаж
от 6 599 800 ₽
→
Дом из газобетона Проект ГБ-209
3 спальн. · 2 санузл. · 1 этаж
от 6 599 000 ₽
→
Проект К-123 8 на 12, площадью 199 за 6 597 000 руб
4 спальн. · 2 этаж
от 6 597 000 ₽
→
Проект одноэтажного дома "Пыжик" из бруса
4 спальн. · 2 этаж
от 10 636 283 ₽
→
Проект одноэтажного дома "Уникум" из бруса
3 спальн. · 2 этаж
от 8 818 439 ₽
→
Проект одноэтажного каркасного дома "Веста"
3 спальн. · 2 этаж
от 9 077 676 ₽
→
На сайт застройщика