Перейти к контенту
Подбор и сравнение проектов домов от застройщиков Московской области
Подборщик домов
Калькулятор сметы
Калькулятор площади
Форум
Блог
Главная
›
Каталог проектов
›
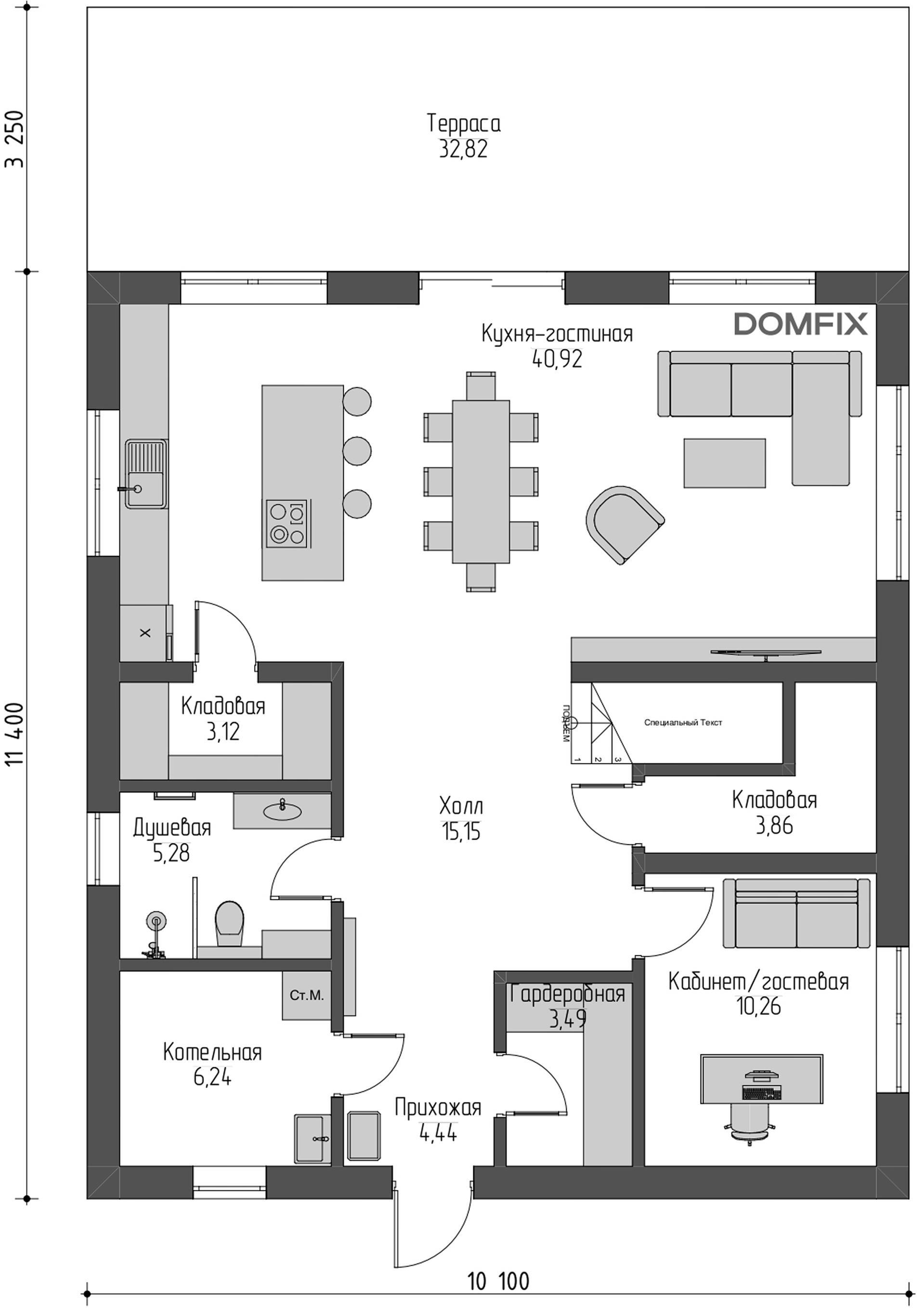
Проект DOMFIX DUO - двухэтажный дом из газобетона
Проект DOMFIX DUO - двухэтажный дом из газобетона
Застройщик: DOMFIX
180.0 м²
1 / 2
🏠
180.0 м²
🛏
4 спален
📐
2 этаж
🧱
Каменный дом
Похожие проекты
Похожие по цене
Похожие по площади
Проект одноэтажного коттеджа "Иволга" из газобетона
3 спальн. · 2 этаж
от 9 500 000 ₽
→
Проект каркасного дома КП-308
1 этаж
от 9 500 000 ₽
→
Проект X-135-1P
1 этаж
от 9 494 800 ₽
→
Дом Горки 2 из газобетона: заказать в Москве по низкой цене
4 спальн. · 2 санузл. · 2 этаж
от 9 690 000 ₽
→
Дом Горки 2 из кирпича: заказать в Москве по низкой цене
4 спальн. · 2 санузл. · 2 этаж
от 9 690 000 ₽
→
Проект одноэтажного коттеджа "Хрустальный" из газобетона
3 спальн. · 2 этаж
от 10 120 000 ₽
→
На сайт застройщика