Перейти к контенту
Подбор и сравнение проектов домов от застройщиков Московской области
Подборщик домов
Калькулятор сметы
Калькулятор площади
Форум
Блог
Главная
›
Каталог проектов
›
Дом из газобетона Проект ГБ-195
Дом из газобетона Проект ГБ-195
Застройщик: Газобетон Строй
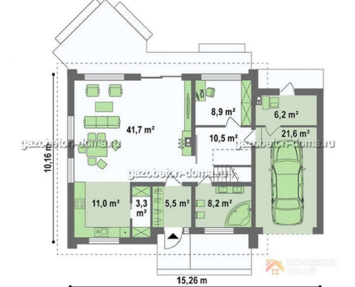
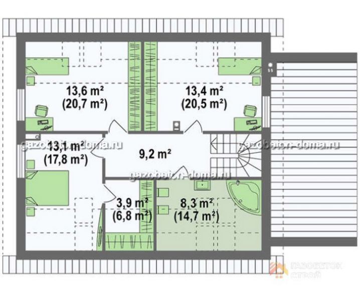
200.0 м²
1 / 3
🏠
200.0 м²
🛏
3 спален
🚿
2 санузл.
🧱
Газобетон
Похожие проекты
Похожие по цене
Похожие по площади
Дом из газобетонных блоков С-141 ГБ «Монарх»
3 спальн. · 2 санузл. · 3 этаж
от 6 973 000 ₽
→
Дом из керамических блоков С-141 КЕ «Монарх»
3 спальн. · 2 санузл. · 3 этаж
от 6 973 000 ₽
→
Проект одноэтажного каркасного дома Бунгало L под ключ от компании БАКО
2 спальн. · 1 санузл. · 1 этаж
от 6 973 900 ₽
→
СК-3
5 спальн. · 3 санузл. · 1 этаж
от 12 450 000 ₽
→
Проект двухэтажного коттеджа "Гжельское" из газобетона
3 спальн. · 2 этаж
от 9 917 000 ₽
→
Дом из газобетона Проект ГБ-199
3 спальн. · 2 санузл. · 2 этаж
от 8 435 000 ₽
→
На сайт застройщика