Перейти к контенту
Подбор и сравнение проектов домов от застройщиков Московской области
Подборщик домов
Калькулятор сметы
Калькулятор площади
Форум
Блог
Главная
›
Каталог проектов
›
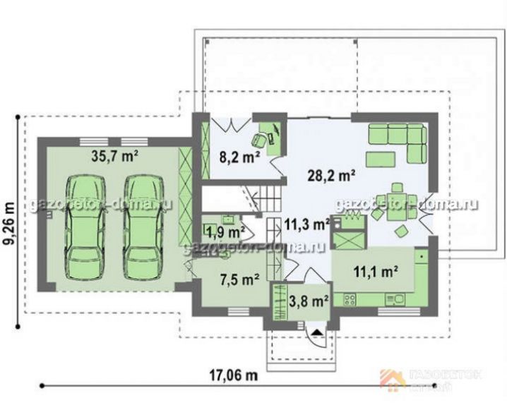
Дом из газобетона Проект ГБ-199
Дом из газобетона Проект ГБ-199
Застройщик: Газобетон Строй
200.0 м²
1 / 3
🏠
200.0 м²
🛏
3 спален
🚿
2 санузл.
📐
2 этаж
🧱
Газобетон
Похожие проекты
Похожие по цене
Похожие по площади
Проект дома «Принс»
4 спальн. · 2 этаж
от 8 436 000 ₽
→
Дом из газобетонных блоков С-179 ГБ «Бьерн»
3 спальн. · 2 санузл. · 3 этаж
от 8 440 000 ₽
→
Дом из керамических блоков С-179 КЕ «Бьерн»
3 спальн. · 2 санузл. · 3 этаж
от 8 440 000 ₽
→
СК-3
5 спальн. · 3 санузл. · 1 этаж
от 12 450 000 ₽
→
Проект двухэтажного коттеджа "Гжельское" из газобетона
3 спальн. · 2 этаж
от 9 917 000 ₽
→
Дом из газобетона Проект ГБ-195
3 спальн. · 2 санузл.
от 6 969 000 ₽
→
На сайт застройщика