Перейти к контенту
Подбор и сравнение проектов домов от застройщиков Московской области
Подборщик домов
Калькулятор сметы
Калькулятор площади
Форум
Блог
Главная
›
Каталог проектов
›
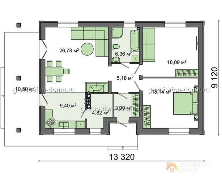
Дом из газобетона Проект ГБ-222
Дом из газобетона Проект ГБ-222
Застройщик: Газобетон Строй
108.0 м²
1 / 2
🏠
108.0 м²
🛏
3 спален
🚿
2 санузл.
📐
1 этаж
🧱
Газобетон
Похожие проекты
Похожие по цене
Похожие по площади
Проект каркасного дома КП-691
1 этаж
от 3 700 000 ₽
→
Каркасный дом 7x10 Проект "Андалузит"
2 спальн. · 1 санузл. · 2 этаж
от 3 698 000 ₽
→
Проект К-57 5 на 11, площадью 110 за 3 671 250 руб
3 спальн. · 2 этаж
от 3 696 000 ₽
→
Проект одноэтажного дома "Лотос" из бруса
3 спальн. · 2 этаж
от 8 684 632 ₽
→
Проект одноэтажного дома "Скандик-4" из бруса
3 спальн. · 2 этаж
от 8 298 785 ₽
→
Строительство каркасного дома 14,3х9,7 "Арти" под ключ
4 спальн. · 2 санузл. · 1 этаж
от 5 834 000 ₽
→
На сайт застройщика