Перейти к контенту
Подбор и сравнение проектов домов от застройщиков Московской области
Подборщик домов
Калькулятор сметы
Калькулятор площади
Форум
Блог
Главная
›
Каталог проектов
›
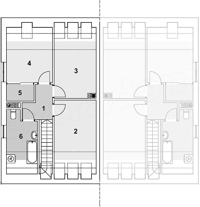
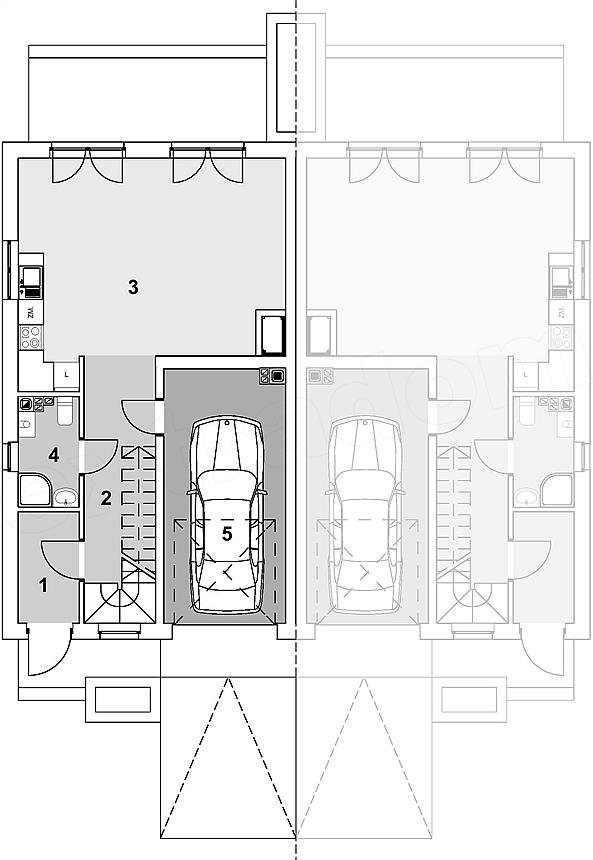
Проект К-57 5 на 11, площадью 110 за 3 671 250 руб
Проект К-57 5 на 11, площадью 110 за 3 671 250 руб
Застройщик: КаркасСтрой
110.0 м²
1 / 3
🏠
110.0 м²
🛏
3 спален
📐
2 этаж
🧱
Каркас
Похожие проекты
Похожие по цене
Похожие по площади
Каркасный дом 7x10 Проект "Андалузит"
2 спальн. · 1 санузл. · 2 этаж
от 3 698 000 ₽
→
Дом из газобетона Проект ГБ-222
3 спальн. · 2 санузл. · 1 этаж
от 3 699 000 ₽
→
Спутник ДЕМО (6x8)
1 спальн. · 1 санузл. · 1 этаж
от 3 693 000 ₽
→
Каркасный дом «Колпино
от 10 095 000 ₽
→
Дом из газобетона Проект ГБ-191
3 спальн. · 2 санузл. · 2 этаж
от 4 809 000 ₽
→
Дом из газобетона Проект ГБ-244
3 спальн. · 2 санузл. · 1 этаж
от 4 163 000 ₽
→
На сайт застройщика