Перейти к контенту
Подбор и сравнение проектов домов от застройщиков Московской области
Подборщик домов
Калькулятор сметы
Калькулятор площади
Форум
Блог
Главная
›
Каталог проектов
›
Дом из газобетона Проект ГБ-248
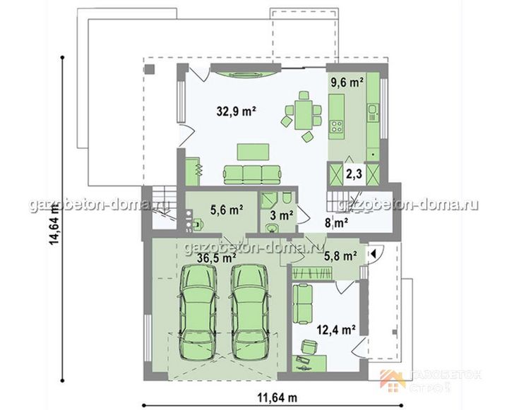
Дом из газобетона Проект ГБ-248
Застройщик: Газобетон Строй
230.0 м²
1 / 3
🏠
230.0 м²
🛏
3 спален
🚿
2 санузл.
📐
2 этаж
🧱
Газобетон
Похожие проекты
Похожие по цене
Похожие по площади
Проект одноэтажного дома "Теодер" из бруса
3 спальн. · 2 этаж
от 9 397 122 ₽
→
Проект К-159 9 на 16, площадью 280 за 9 396 000 руб
3 спальн. · 2 этаж
от 9 396 000 ₽
→
Проект дома «Лесная сказка» | ЭкоТех
4 спальн. · 2 санузл. · 2 этаж
от 9 396 000 ₽
→
Проект двухэтажного дома "Октав-2" из бруса
4 спальн. · 2 этаж
от 15 317 844 ₽
→
Проект дома «Эдлер»
4 спальн. · 2 этаж
от 11 978 400 ₽
→
Проект одноэтажного дома "Дельта" из бруса
4 спальн. · 2 этаж
от 16 577 789 ₽
→
На сайт застройщика