Перейти к контенту
Подбор и сравнение проектов домов от застройщиков Московской области
Подборщик домов
Калькулятор сметы
Калькулятор площади
Форум
Блог
Главная
›
Каталог проектов
›
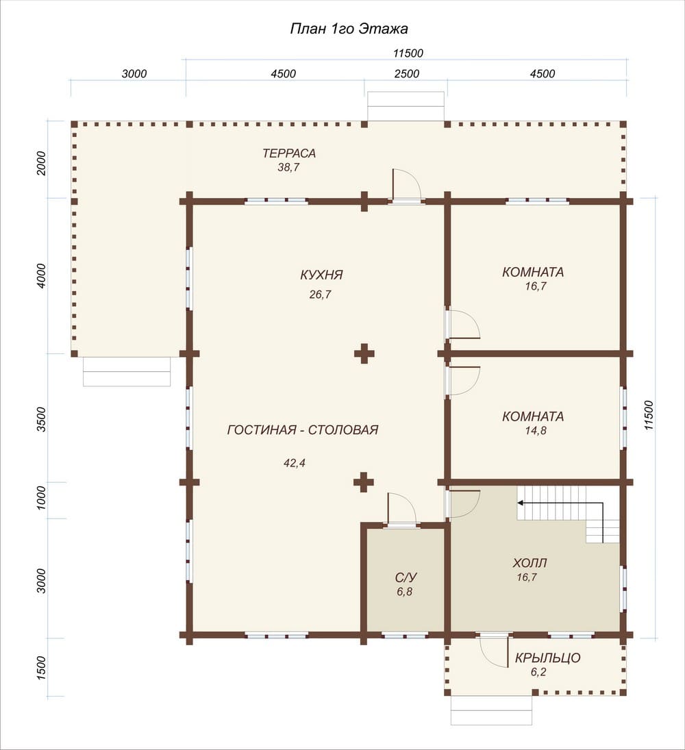
Двухэтажный дом 7 спален №350
Двухэтажный дом 7 спален №350
Застройщик: ДСК Норд
233.0 м²
1 / 3
🏠
233.0 м²
📐
2 этаж
🧱
Клееный брус
Похожие проекты
Похожие по цене
Похожие по площади
Двухэтажный 7 спален №350
2 этаж
от 12 331 280 ₽
→
Проект F-176-1P
2 этаж
от 12 329 100 ₽
→
Проект дома H-176-1P
1 этаж
от 12 334 000 ₽
→
Двухэтажный 7 спален №350
2 этаж
от 12 331 280 ₽
→
Дом по проекту «ЗС 373-18» - Золотое Сечение
3 спальн. · 1 санузл.
от 29 125 000 ₽
→
Дом по проекту «Кельн» - Золотое Сечение
3 спальн. · 3 санузл.
от 29 125 000 ₽
→
На сайт застройщика