Перейти к контенту
Подбор и сравнение проектов домов от застройщиков Московской области
Подборщик домов
Калькулятор сметы
Калькулятор площади
Форум
Блог
Главная
›
Каталог проектов
›
Дом по проекту «Кельн» - Золотое Сечение
Дом по проекту «Кельн» - Золотое Сечение
Застройщик: Золотое Сечение
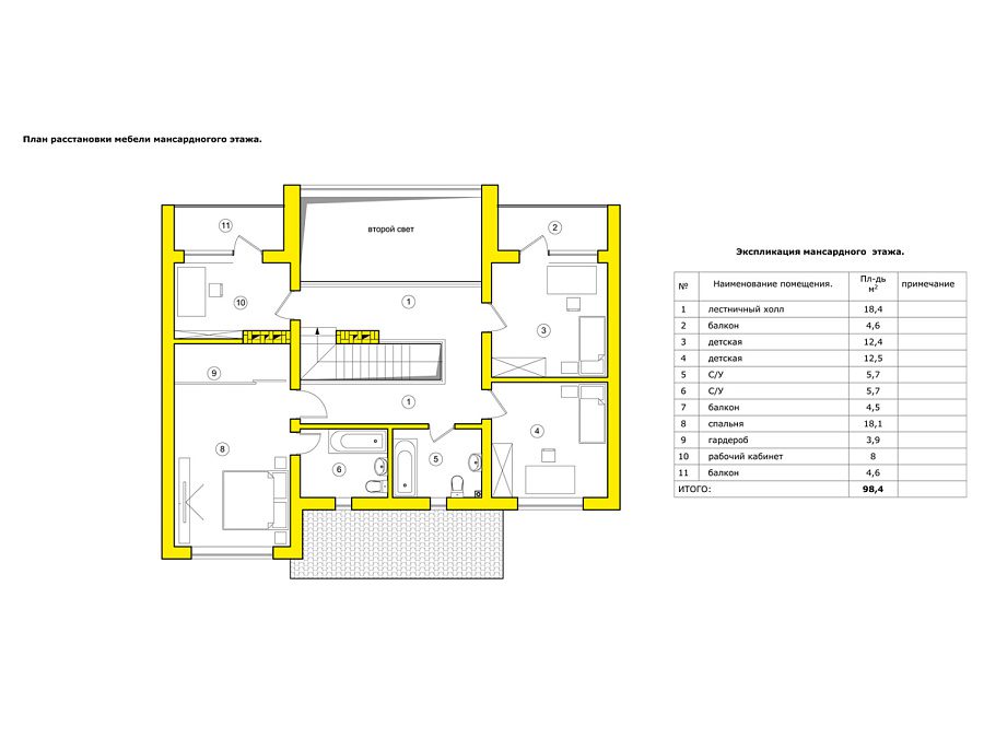
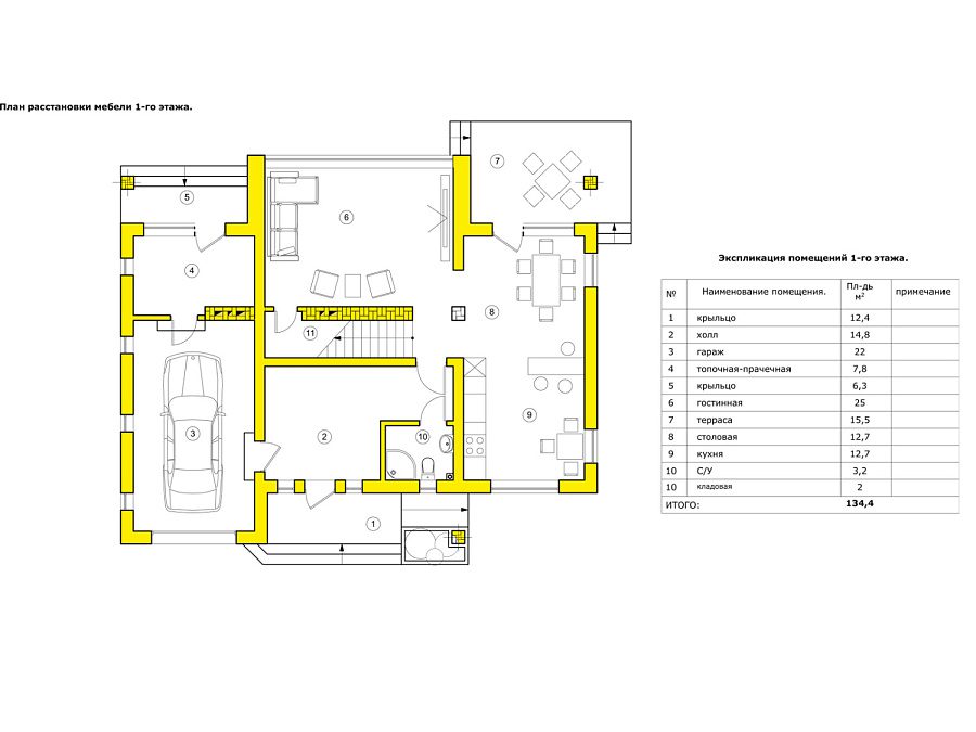
233.0 м²
1 / 3
🏠
233.0 м²
🛏
3 спален
🚿
3 санузл.
🧱
Газобетонный блок
Похожие проекты
Похожие по цене
Похожие по площади
Дом по проекту «ЗС 373-18» - Золотое Сечение
3 спальн. · 1 санузл.
от 29 125 000 ₽
→
Проект одноэтажного загородного дома. Арх. М.А.Кузьмин (1874 г.) из бруса
2 этаж
от 29 121 316 ₽
→
Проект R-355-1K
3 этаж
от 29 110 000 ₽
→
Двухэтажный 7 спален №350
2 этаж
от 12 331 280 ₽
→
Двухэтажный дом 7 спален №350
2 этаж
от 12 331 280 ₽
→
Дом по проекту «ЗС 373-18» - Золотое Сечение
3 спальн. · 1 санузл.
от 29 125 000 ₽
→
На сайт застройщика