Перейти к контенту
Подбор и сравнение проектов домов от застройщиков Московской области
Подборщик домов
Калькулятор сметы
Калькулятор площади
Форум
Блог
Главная
›
Каталог проектов
›
Проект A-148-1K
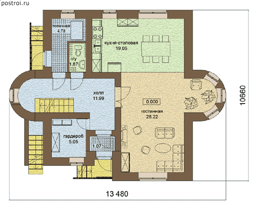
Проект A-148-1K
Застройщик: Юникс-Строй
147.79 м²
1 / 3
🏠
147.79 м²
📐
2 этаж
🧱
Кирпич
Похожие проекты
Похожие по цене
Похожие по площади
Дом 4 спальни 2 санузла №367
2 этаж
от 12 116 750 ₽
→
Проект дома 4 спальни 2 санузла №367
2 этаж
от 12 116 750 ₽
→
Проект двухэтажного каркасного дома "Тефия3"
4 спальн. · 2 этаж
от 12 115 760 ₽
→
Проект D-112-1P
2 этаж
от 10 346 000 ₽
→
Проект T-148-1P
2 этаж
от 10 346 000 ₽
→
Проект дома «Харрис»
2 спальн. · 1 этаж
от 12 435 000 ₽
→
На сайт застройщика