Перейти к контенту
Подбор и сравнение проектов домов от застройщиков Московской области
Подборщик домов
Калькулятор сметы
Калькулятор площади
Форум
Блог
Главная
›
Каталог проектов
›
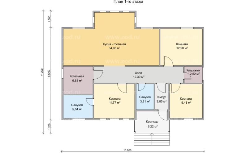
Альфа 3
Альфа 3
Застройщик: Зодчий
109.61 м²
1 / 3
🏠
109.61 м²
🛏
3 спален
🚿
2 санузл.
📐
3 этаж
🧱
Брус
Похожие проекты
Похожие по цене
Похожие по площади
Проект дома L-115-1P
2 этаж
от 8 019 900 ₽
→
Проект каркасного дома КП-118
1 этаж
от 8 020 000 ₽
→
Дом из газобетона Проект ГБ-239
3 спальн. · 2 санузл.
от 8 019 000 ₽
→
Проект дома C-110-1P
3 этаж
от 7 672 000 ₽
→
Каскад 1 (10x12)
3 спальн. · 1 санузл. · 1 этаж
от 6 862 000 ₽
→
Альфа 3
3 спальн. · 2 санузл. · 1 этаж
от 4 879 801 ₽
→
На сайт застройщика