Перейти к контенту
Подбор и сравнение проектов домов от застройщиков Московской области
Подборщик домов
Калькулятор сметы
Калькулятор площади
Форум
Блог
Главная
›
Каталог проектов
›
Проект дома C-110-1P
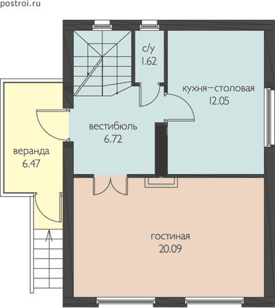
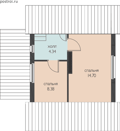
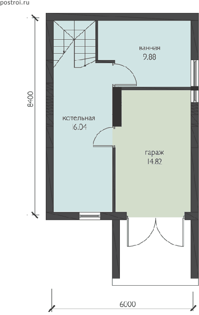
Проект дома C-110-1P
Застройщик: Юникс-Строй
109.6 м²
1 / 4
🏠
109.6 м²
📐
3 этаж
🧱
Пеноблок
Похожие проекты
Похожие по цене
Похожие по площади
Проект T-051-1D
1 санузл. · 2 этаж
от 7 665 000 ₽
→
Уэльс 21
4 спальн. · 2 санузл. · 2 этаж
от 7 679 800 ₽
→
Проект каркасного дома КП-150
3 спальн. · 1 этаж
от 7 680 000 ₽
→
Альфа 3
3 спальн. · 2 санузл. · 3 этаж
от 8 019 800 ₽
→
Каскад 1 (10x12)
3 спальн. · 1 санузл. · 1 этаж
от 6 862 000 ₽
→
Альфа 3
3 спальн. · 2 санузл. · 1 этаж
от 4 879 801 ₽
→
На сайт застройщика