Перейти к контенту
Подбор и сравнение проектов домов от застройщиков Московской области
Подборщик домов
Калькулятор сметы
Калькулятор площади
Форум
Блог
Главная
›
Каталог проектов
›
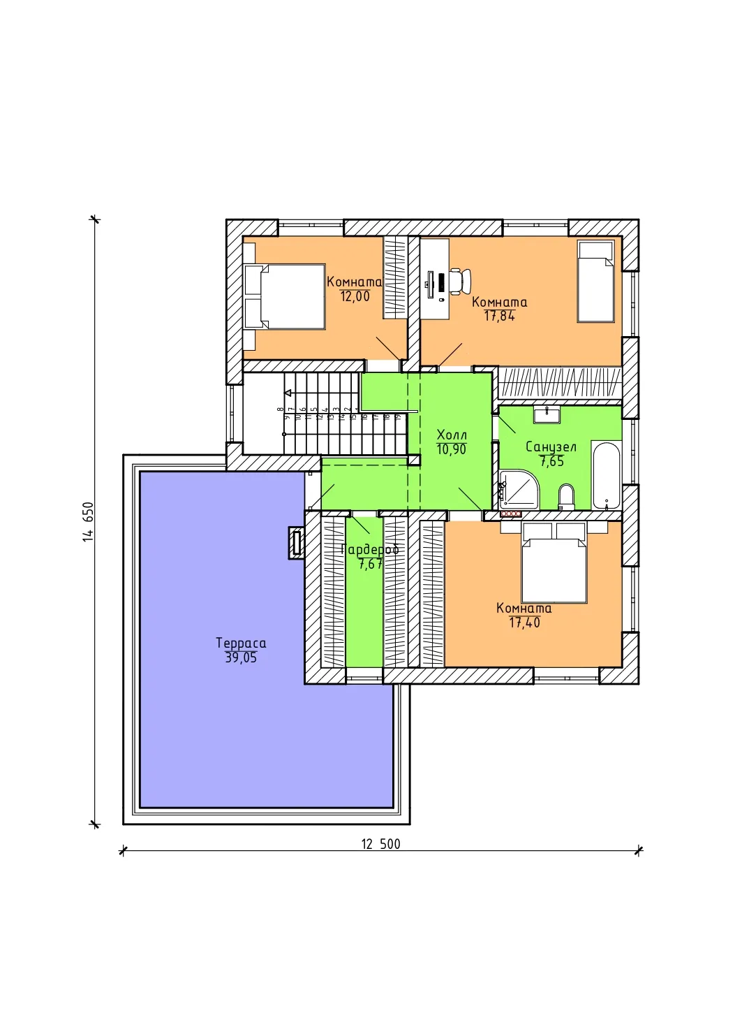
Дом по проекту «ЗС 11-17-2» - Золотое Сечение
Дом по проекту «ЗС 11-17-2» - Золотое Сечение
Застройщик: Золотое Сечение
321.0 м²
1 / 3
🏠
321.0 м²
🛏
3 спален
🚿
2 санузл.
🧱
Газобетонный блок/керамический блок/кирпич
Похожие проекты
Похожие по цене
Похожие по площади
Дом по проекту «ЗС 11-17» - Золотое Сечение
4 спальн. · 3 санузл.
от 40 125 000 ₽
→
Проект «Blackwood»
5 спальн. · 7 санузл. · 2 этаж
от 40 070 000 ₽
→
Проект «Blackwood»
5 спальн. · 7 санузл. · 2 этаж
от 40 070 000 ₽
→
Дом по проекту «ЗС 11-17» - Золотое Сечение
4 спальн. · 3 санузл.
от 40 125 000 ₽
→
Современный дом в стиле БарнХаус «Лорван»
4 спальн. · 3 санузл. · 2 этаж
от 19 260 000 ₽
→
Проект G-320-1P
2 этаж
от 22 460 900 ₽
→
На сайт застройщика