Перейти к контенту
Подбор и сравнение проектов домов от застройщиков Московской области
Подборщик домов
Калькулятор сметы
Калькулятор площади
Форум
Блог
Главная
›
Каталог проектов
›
Современный дом в стиле БарнХаус «Лорван»
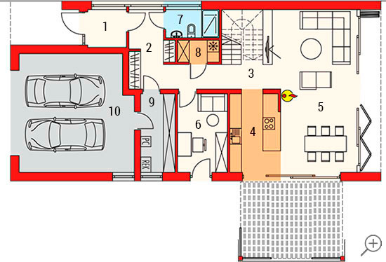
Современный дом в стиле БарнХаус «Лорван»
Застройщик: ОлимпСтройСервис
321.0 м²
1 / 6
🏠
321.0 м²
🛏
4 спален
🚿
3 санузл.
📐
2 этаж
🧱
Из керамических блоков
Похожие проекты
Похожие по цене
Похожие по площади
Кирпичный дом С-418 К «Успех»
6 спальн. · 4 санузл. · 2 этаж
от 19 259 000 ₽
→
Проект M-234-1K
2 этаж
от 19 263 440 ₽
→
Проект V-234-1K
2 этаж
от 19 256 060 ₽
→
Дом по проекту «ЗС 11-17-2» - Золотое Сечение
3 спальн. · 2 санузл.
от 40 125 000 ₽
→
Дом по проекту «ЗС 11-17» - Золотое Сечение
4 спальн. · 3 санузл.
от 40 125 000 ₽
→
Проект G-320-1P
2 этаж
от 22 460 900 ₽
→
На сайт застройщика