Перейти к контенту
Подбор и сравнение проектов домов от застройщиков Московской области
Подборщик домов
Калькулятор сметы
Калькулятор площади
Форум
Блог
Главная
›
Каталог проектов
›
Проект V-234-1K
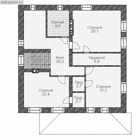
Проект V-234-1K
Застройщик: Юникс-Строй
234.83 м²
1 / 3
🏠
234.83 м²
📐
2 этаж
🧱
Кирпич
Похожие проекты
Похожие по цене
Похожие по площади
Кирпичный дом С-418 К «Успех»
6 спальн. · 4 санузл. · 2 этаж
от 19 259 000 ₽
→
Современный дом в стиле БарнХаус «Лорван»
4 спальн. · 3 санузл. · 2 этаж
от 19 260 000 ₽
→
Проект M-234-1K
2 этаж
от 19 263 440 ₽
→
Проект M-234-1K
2 этаж
от 19 263 440 ₽
→
Проект U-235-1K
2 этаж
от 19 243 760 ₽
→
Проект одноэтажного коттеджа "Душистая Сирень" из газобетона
4 спальн. · 2 этаж
от 10 146 000 ₽
→
На сайт застройщика