Перейти к контенту
Подбор и сравнение проектов домов от застройщиков Московской области
Подборщик домов
Калькулятор сметы
Калькулятор площади
Форум
Блог
Главная
›
Каталог проектов
›
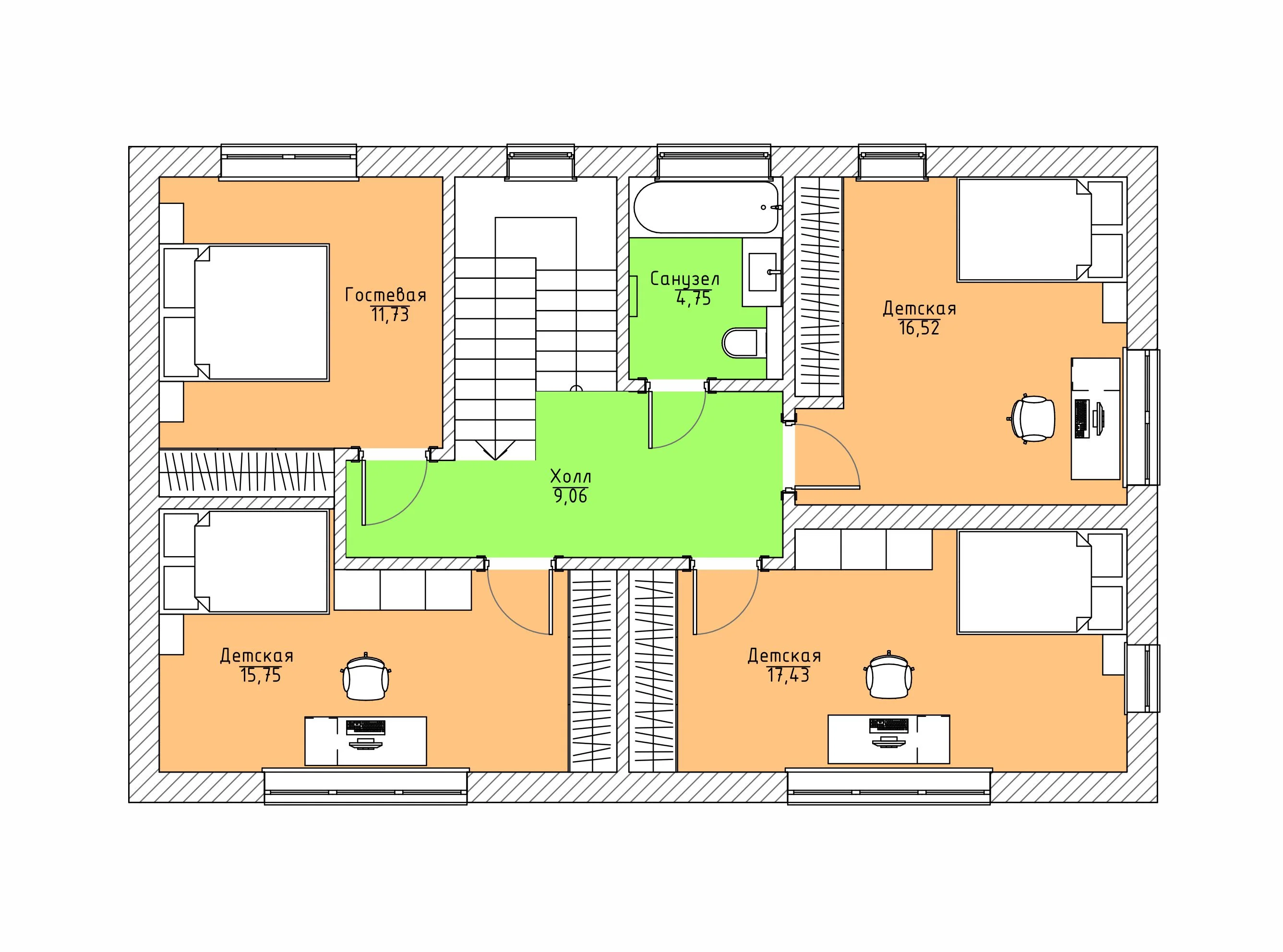
Дом по проекту «ЗС 240-25» - Золотое Сечение
Дом по проекту «ЗС 240-25» - Золотое Сечение
Застройщик: Золотое Сечение
180.0 м²
1 / 3
🏠
180.0 м²
🛏
5 спален
🚿
2 санузл.
🧱
Газобетонный блок/Керамический блок/Кирпич
Похожие проекты
Похожие по цене
Похожие по площади
Проект D-150-1D
2 санузл. · 2 этаж
от 22 500 000 ₽
→
Проект F-150-1D
1 этаж
от 22 500 000 ₽
→
Проект U-274-1K
2 этаж
от 22 504 080 ₽
→
Дом Горки 2 из газобетона: заказать в Москве по низкой цене
4 спальн. · 2 санузл. · 2 этаж
от 9 690 000 ₽
→
Дом Горки 2 из кирпича: заказать в Москве по низкой цене
4 спальн. · 2 санузл. · 2 этаж
от 9 690 000 ₽
→
Проект DOMFIX DUO - двухэтажный дом из газобетона
4 спальн. · 2 этаж
от 9 500 000 ₽
→
На сайт застройщика