Перейти к контенту
Подбор и сравнение проектов домов от застройщиков Московской области
Подборщик домов
Калькулятор сметы
Калькулятор площади
Форум
Блог
Главная
›
Каталог проектов
›
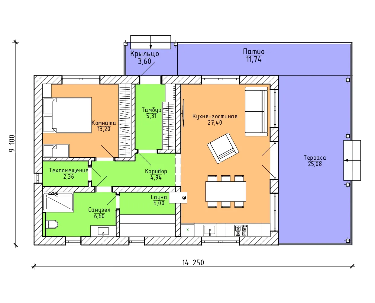
Дом по проекту «ЗС 250-22» - Золотое Сечение
Дом по проекту «ЗС 250-22» - Золотое Сечение
Застройщик: Золотое Сечение
105.0 м²
1 / 2
🏠
105.0 м²
🛏
1 спален
🚿
1 санузл.
🧱
Газобетонный блок/Керамический блок/Кирпич
Похожие проекты
Похожие по цене
Похожие по площади
Дом по проекту «ЗС 211-22» - Золотое Сечение
3 спальн. · 2 санузл.
от 13 125 000 ₽
→
Дом из газобетонных блоков С-322 ГБ «Ясень»
4 спальн. · 4 санузл. · 2 этаж
от 13 127 000 ₽
→
Дом из керамических блоков С-322 КЕ «Ясень»
4 спальн. · 4 санузл. · 2 этаж
от 13 127 000 ₽
→
Проект двухэтажного дома "Золотой ключик" из бруса
2 спальн. · 2 этаж
от 10 016 048 ₽
→
Проект одноэтажного дома "Легенда" из бруса
3 спальн. · 2 этаж
от 8 424 673 ₽
→
Строительство каркасного дома 10х6 "Тилбург" под ключ
5 спальн. · 1 санузл. · 2 этаж
от 4 223 000 ₽
→
На сайт застройщика