Перейти к контенту
Подбор и сравнение проектов домов от застройщиков Московской области
Подборщик домов
Калькулятор сметы
Калькулятор площади
Форум
Блог
Главная
›
Каталог проектов
›
Проект G-078-1P
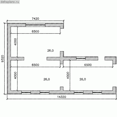
Проект G-078-1P
Застройщик: Юникс-Строй
78.0 м²
1 / 2
🏠
78.0 м²
📐
1 этаж
🧱
Пеноблок
Похожие проекты
Похожие по цене
Похожие по площади
Проект К-149 11 на 9, площадью 195 за 6 527 250 руб
4 спальн. · 2 этаж
от 5 460 000 ₽
→
Дом «Елизаров» 8,5х9 м
2 этаж
от 5 460 000 ₽
→
Проект дома «Эвермор»
2 спальн. · 1 этаж
от 5 459 070 ₽
→
Проект двухэтажного коттеджа "Эфим" из газобетона
2 спальн. · 2 этаж
от 5 281 000 ₽
→
Проект одноэтажного дома "Уголок-М1 (одноэтажный)" из бруса
1 спальн. · 1 этаж
от 12 840 580 ₽
→
Проект F-078-1P
1 этаж
от 5 453 000 ₽
→
На сайт застройщика