Перейти к контенту
Подбор и сравнение проектов домов от застройщиков Московской области
Подборщик домов
Калькулятор сметы
Калькулятор площади
Форум
Блог
Главная
›
Каталог проектов
›
Дом по проекту «ЗС 307-23» - Золотое Сечение
Дом по проекту «ЗС 307-23» - Золотое Сечение
Застройщик: Золотое Сечение
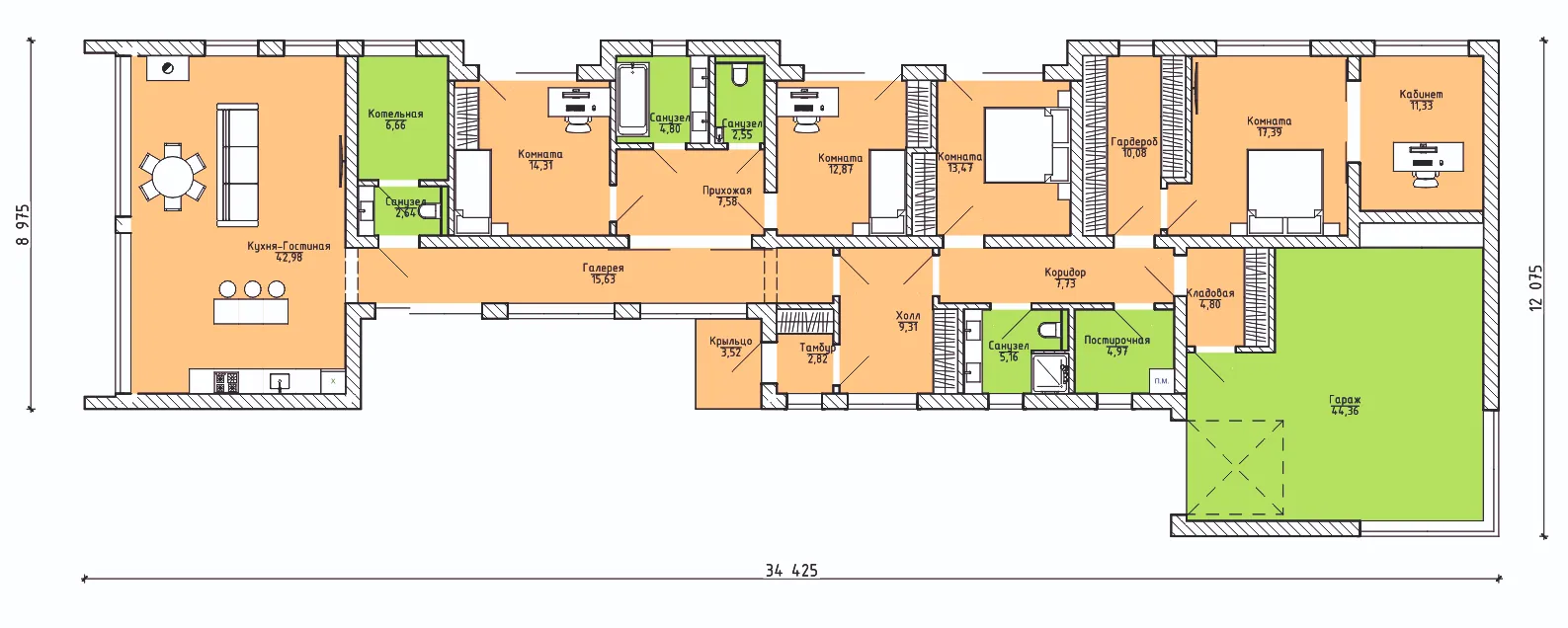
245.0 м²
1 / 2
🏠
245.0 м²
🛏
4 спален
🚿
3 санузл.
🧱
Газобетонный блок/Керамический блок/Кирпич
Похожие проекты
Похожие по цене
Похожие по площади
Проект E-374-1K
3 этаж
от 30 629 460 ₽
→
Проект A-203-1D
3 этаж
от 30 600 000 ₽
→
Проект A-204-1D
2 этаж
от 30 600 000 ₽
→
Дом Покровское 2 из газобетона: заказать в Москве по низкой цене
4 спальн. · 2 санузл. · 2 этаж
от 10 440 000 ₽
→
Дом Покровское 2 из кирпича: заказать в Москве по низкой цене
4 спальн. · 2 санузл. · 2 этаж
от 10 440 000 ₽
→
Проект дома «Фелпс»
4 спальн. · 2 этаж
от 11 641 724 ₽
→
На сайт застройщика