Перейти к контенту
Подбор и сравнение проектов домов от застройщиков Московской области
Подборщик домов
Калькулятор сметы
Калькулятор площади
Форум
Блог
Главная
›
Каталог проектов
›
Проект A-183-1P
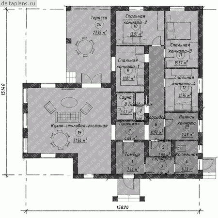
Проект A-183-1P
Застройщик: Юникс-Строй
182.0 м²
1 / 2
🏠
182.0 м²
📐
1 этаж
🧱
Пеноблок
Похожие проекты
Похожие по цене
Похожие по площади
Проект дома из газоблоков 19х15 ГББ-217: цена 9635000 руб.
4 спальн. · 3 санузл. · 1 этаж
от 12 740 000 ₽
→
Проект X-182-1P
2 этаж
от 12 740 700 ₽
→
Проект дома AS-500
3 этаж
от 12 747 500 ₽
→
Проект двухэтажного каркасного дома "Метида"
6 спальн. · 2 этаж
от 13 944 554 ₽
→
Каркасный дом «Волхов
от 9 255 000 ₽
→
Дом по проекту «Дармштадт» - Золотое Сечение
3 спальн. · 3 санузл.
от 22 750 000 ₽
→
На сайт застройщика