Перейти к контенту
Подбор и сравнение проектов домов от застройщиков Московской области
Подборщик домов
Калькулятор сметы
Калькулятор площади
Форум
Блог
Главная
›
Каталог проектов
›
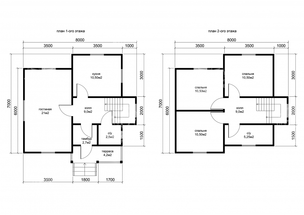
Каркасный дом 8x7 Проект "Тааффеит"
Каркасный дом 8x7 Проект "Тааффеит"
Застройщик: Каркасные дома RU
112.0 м²
1 / 2
🏠
112.0 м²
🛏
3 спален
🚿
1 санузл.
📐
2 этаж
🧱
Каркас
Похожие проекты
Похожие по цене
Похожие по площади
Проект дома «Домик в деревне» | ЭкоТех
2 спальн. · 1 санузл. · 1 этаж
от 2 202 000 ₽
→
Проект M-112-1S
2 этаж
от 2 208 370 ₽
→
Баня Тайга с мансардой 6
2 спальн. · 1 санузл. · 2 этаж
от 2 209 000 ₽
→
Проект двухэтажного каркасного дома "Глория-1 "
3 спальн. · 2 этаж
от 8 035 264 ₽
→
Каркасный дом «Отрадное
от 5 885 000 ₽
→
Дом из кирпича Проект КД-3
3 спальн. · 2 санузл. · 2 этаж
от 420 000 ₽
→
На сайт застройщика